Vznikne zde sportovní hala, wellness centrum či dětská hřiště i další veřejná prostranství.
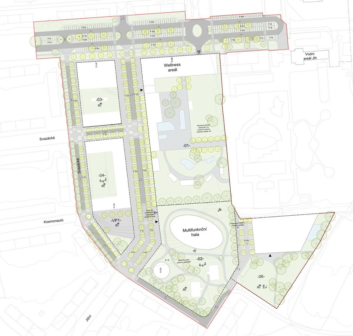
Na místě bývalého fotbalového stadionu Svazácká vznikne moderní sportovní areál. Dokončená studie z dílny našeho ateliéru stanovuje parametry a podmínky pro vznik sportovní haly, wellness centra a počítá i s rezervou pro krytý bazén v blízkosti stávajícího koupaliště či plochou pro další sportovní halu, parkovací dům nebo hotel.
Návrh přináší novou uliční síť, která výrazně zlepší průchodnost oblasti, aniž by zvýšila dopravní zatížení. Tato síť propojí území s okolním sídlištěm a Bělským lesem. Ulice budou lemovány stromořadím a doplněny o prvky pro hospodaření s dešťovou vodou.
Kromě toho se zlepší dopravní napojení, zvýší se parkovací kapacity a vzniknou nová veřejná prostranství pro odpočinek, setkávání a dětské hry, a dojde i ke kultivaci těch stávajících.
Studie, která zohledňuje podněty z dotazníkového průzkumu, vytváří podmínky pro udržitelný rozvoj této oblasti městského obvodu Ostrava-Jih a přináší nové možnosti pro aktivní trávení volného času. Bude sloužit také jako podklad pro rozhodování o prodeji a směně pozemků.
Studii můžete prozkoumat zde: Urbanistická studie Sportovní areál Jih
O projektu se více dozvíte zde: Sportovní areál Jih
Urbanistický výkres navrhovaného prostorového rozvoje území.
![]()
